Aktuálně můžete v lokalitě Karlovy Vary vybírat z nabídky 56 domů.
Přehled nemovitostí: prodej domy > činžovní domy Zpět na přehled nabídek

Prodej, Činžovní dům, Karlovy Vary

neuvedeno

556 m2

D - Méně úsporná

0004-2023

Cena: 12999000 CZK / objekt
Poznámka k ceně: včetně hypotéčního poradenství 1

Poslat dotaz k nabídce
Zásady používání osobních údajů

Prodejce

Makléř: Reality

Telefon: 608 256 ...

E-mail: info@zm ...

Zobrazit celý kontakt

Nemovitost nabízí

Z&M reality

Dr. Davida Bechera 2037/23, Karlovy Vary

www.zmreality.cz

Zobrazit kontakt na RK

Zobrazit všechny nabídky RK

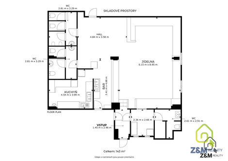
Nabízíme k prodeji část činžovního domu v ulici Okružní ve Staré Roli. Součástí prodeje je nebytový prostor restaurace se zázemím ,dále pak sklady (s garáží přímo v domě) v 1NP o výměře 209m2. K restauraci patří zahrádka o výměře 145m2 před domem. Ve 2NP pak nebytový prostor o výměře 223m2 využívaný jako apartmány v dispozici 1+1 a 2+kk,velká vstupní hala, kancelář a zázemí. Ve 3NP jsou pak dvě bytové jednotky a to konkrétně 1+1 o výměře 64m2 a 2+kk o výměře 58m2. Byty jsou ve velmi dobrém stavu vytápěny elektrokotlem v kombinaci podlahového vytápění a klasických topných těles. Všechny jednotky jsou vymezeny prohlášením vlastníka a prodávají se jako funkční celek. Nemovitost se nachází v klidné lokalitě v těsné blízkosti veškeré občanské vybavenosti.



Nahoru