Makléř: Janovec Karel
Telefon: 800 100 ...
E-mail: info@mm ...
Zobrazit celý kontaktTelefon: 800 100 446
E-mail: info@mmreality.cz
Nemovitost nabízí
M&M reality holding a.s.
Krakovská 1675/2, 110 00 Praha 1
Zobrazit kontakt na RK800 100 446
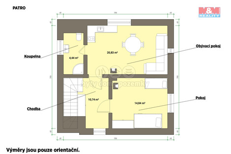
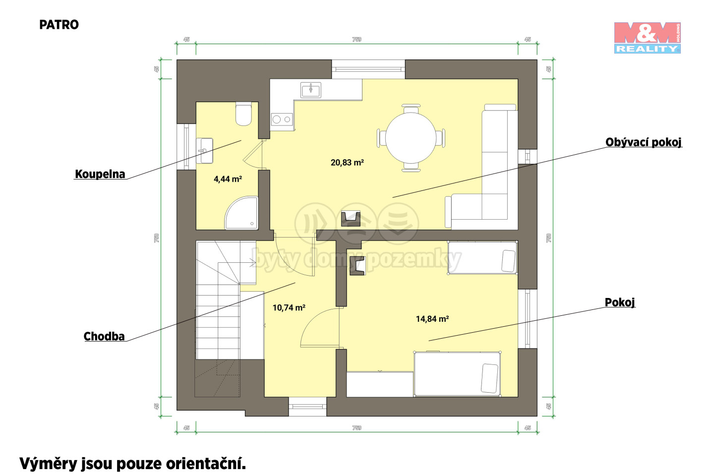
Nabízíme Vám na prodej rodinný dům, který se nachází v klidné lokalitě města Kraslice - část Zelená Hora, s možností dvougeneračního bydlení. V domě byla započata rekonstrukce, celý dům je podsklepený, v přízemí je vstupní chodba se schodištěm, obývací pokoj s kuchyní, ložnice a toaleta. V podkroví je další kuchyň s pokojem, ložnice a koupelna. Ve sklepě je připravena komplet nová krytina a zateplení pro celou plochu střechy, jižní strana domu je zateplena, zbytek obvodu domu je v lepidle. Dům je nově osazen plastovými okny (trojskla) a má nové rozvody odpadů. Dům je vhodný jak k trvalému bydlení, tak k rekreačním účelům. Náleží k němu zahrada o celkové ploše 323 m2. Klidné prostředí Kraslic, které je známé svou krásnou přírodou je ideálním útočištěm pro váš spokojený život. Pro milovníky lyžování je nedaleko SKI areál Bublava. S financováním Vám pomůže tým našich specialistů. Bližší informace Vám sdělí makléř.
Prodej, domy/rodinný, 134 m2, Sadová 1024/17, 35801 Kraslice, Sokolov [ID 76337]
Nabízíme k prodeji rodinný dům 3+1 o celkové užitné ploše 135 m, který se nachází v klidné a vyhledávané lokalitě v ulici Sadová v Kraslicích. Díky…
Prodej rodinného domu, 219 m2, Kraslice, ul. Havlíčkova
Nabízíme prostorný rodinný dům z roku 1910, který prošel částečnými úpravami a je připraven k okamžitému užívání. V přízemí se nachází obývací pokoj…