Aktuálně můžete v lokalitě Karlovy Vary vybírat z nabídky 60 domů.
Přehled nemovitostí: prodej domy > rodinné domy Zpět na přehled nabídek

Prodej rodinného domu 7+1 v Podhradí u Aše, zahrada 5366 m2

5 473 m2

370 m2

osobní

G - Mimořádně nehospodárná

903737

Cena: 7999000 CZK / objekt
Poznámka k ceně: V případě více zájemců může RK využít pro výběr kupujícího formu aukce. 1

Poslat dotaz k nabídce
Zásady používání osobních údajů

Prodejce

Makléř: Janovec Karel

Telefon: 800 100 ...

E-mail: info@mm ...

Zobrazit celý kontakt

Nemovitost nabízí

M&M reality holding a.s.

Krakovská 1675/2, 110 00 Praha 1

www.mmreality.cz

Zobrazit kontakt na RK

Zobrazit všechny nabídky RK

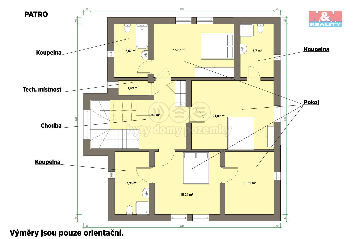
Nabízíme k prodeji prostorný rodinný dům v malebné části obce Podhradí u Aše. Tato samostatně stojící nemovitost je ideálně situována na okraji obce a nabízí klidné bydlení s nádherným výhledem do okolní krajiny. K dispozici je celkem 8 místností, které poskytují dostatek prostoru pro rodinné bydlení či rekonstrukci podle vlastních představ. V přízemí je vstupní chodba se schodištěm, 2 koupelny, 3 toalety, obývací pokoj, ložnice, technická místnost. V prvním patře jsou 3 pokoje, 1 pokoj s vanou, 2 pokoje se sprchou a celkem 3 toalety. V suterénu domu je kuchyně, 2 toalety, místnost využívaná jako restaurace. Na zahradě o rozloze 5336 m2 je skleník, udírna, garáž pro dvě osobní auta s pergolou, kůlna a vlastní studna vrt 60 m. Stav nemovitosti je dobrý, což umožňuje okamžité nastěhování. Tato nabídka představuje ideální příležitost pro ty, kteří hledají klidné bydlení s velkorysým prostorem v krásném prostředí. Nezmeškejte tuto jedinečnou příležitost a domluvte si prohlídku ještě dnes!



Nahoru