Makléř: Bulvasová Lucie
Telefon: 800 100 ...
E-mail: info@mm ...
Zobrazit celý kontaktTelefon: 800 100 446
E-mail: info@mmreality.cz
Nemovitost nabízí
M&M reality holding a.s.
Krakovská 1675/2, 110 00 Praha 1
Zobrazit kontakt na RK800 100 446
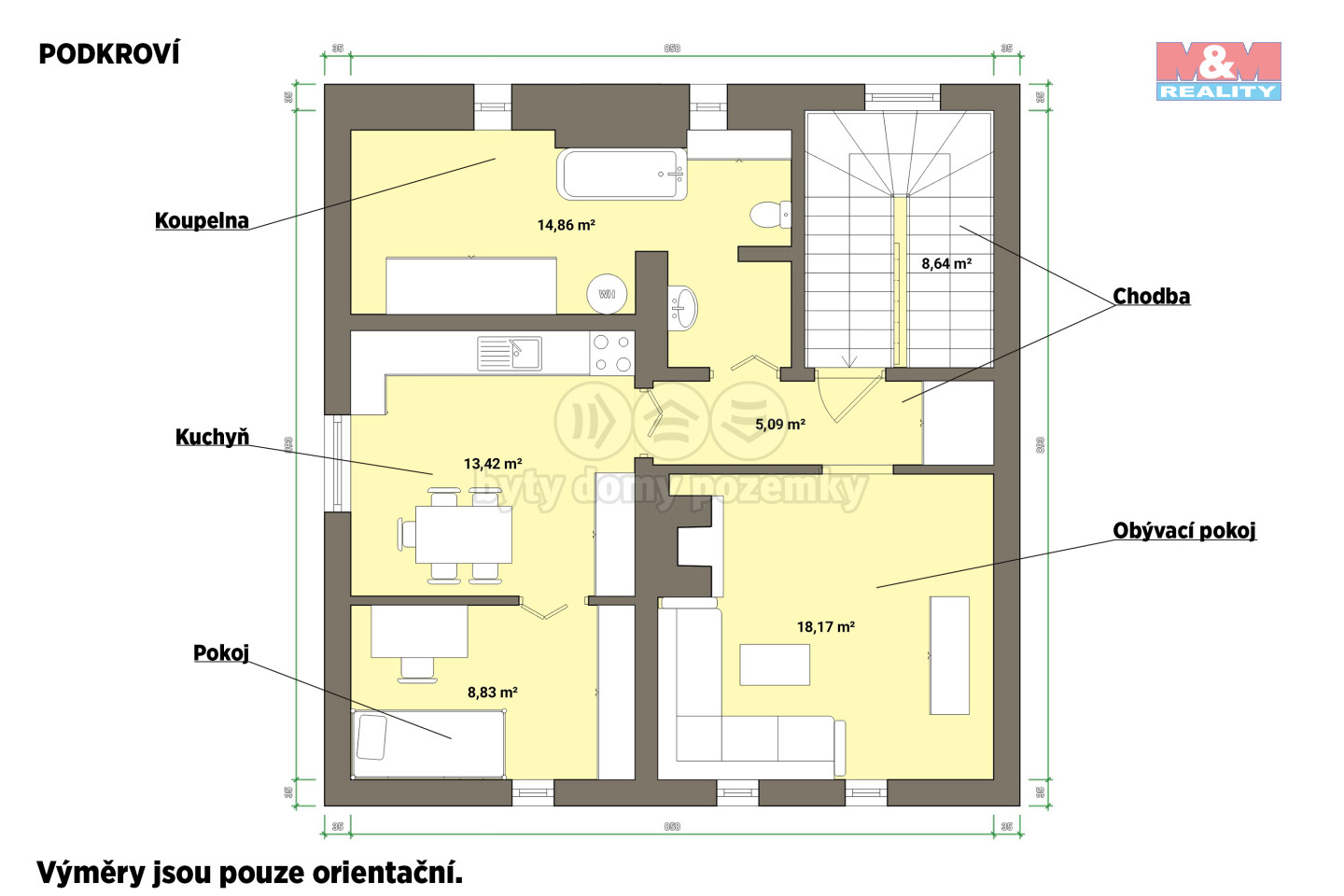
Nabízíme k prodeji třígenerační rodinný dům v klidné části obce Aš. Tento samostatně stojící cihlový dům nabízí v každém podlaží jeden byt o dispozičním řešení 2+1 a velké množství úložných prostor a technického zázemí, s celkovou užitnou plochou 270 m2. V domě se nachází 9 obytných místností rozdělených do tří bytů 2+1. Součástí domu je také garáž s elektrickými vraty, vodou, topením, WC a umyvadlem - ideální pro Vaše podnikání. Na zahradě náležící k domu, která má výměru 374 m2 se nachází altán se zavedenou elektřinou, grilem, dále pak kůlna na nářadí a další okrasné a dekorační prvky, vzrostlé ovocné stromy a keře. Vytápění domu je řešeno plynovými kotli, ohřev vody bojlery. V průběhu posledních 10 let byly zhotoveny renovace a úpravy - střecha, plastová okna, rozvody elektřiny v mědi a vody v plastu, podlahy atd. Nemovitost je vhodná pro větší rodinu, jako vícegenerační bydlení spojené i s možností drobného podnikání či jako investici k budoucímu pronájmu.
Prodej rodinného domu, 357 m2, Aš - Vernéřov
Nabízím k prodeji velký rodinný dům ve Vernéřově u Aše s užitnou plochou 357 m2, zasazený na rozlehlém pozemku o výměře 12 951 m2 v malebné krajině…
Prodej rodinného domu, 232 m2, Aš
Klidné místo na okraji Dolních Pasek, kde kolem domu slyšíte jen přírodu, čeká na nového majitele s vizí. Tento prostorný cihlový dům s užitnou…