Makléř: Ing. Bc. Marečková Romana
Telefon: 800 100 ...
E-mail: info@mm ...
Zobrazit celý kontaktTelefon: 800 100 446
E-mail: info@mmreality.cz
Nemovitost nabízí
M&M reality holding a.s.
Krakovská 1675/2, 110 00 Praha 1
Zobrazit kontakt na RK800 100 446
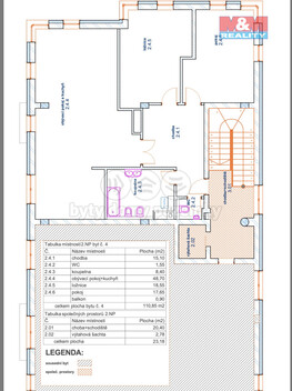
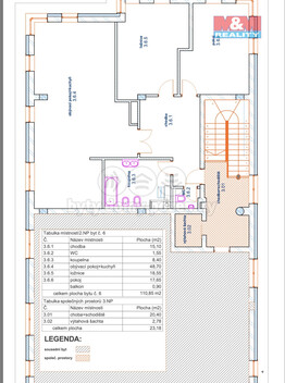
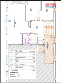
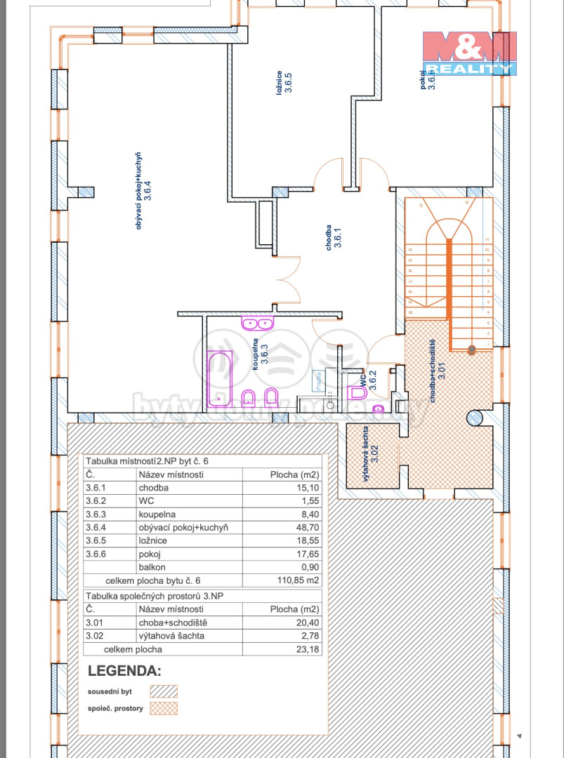
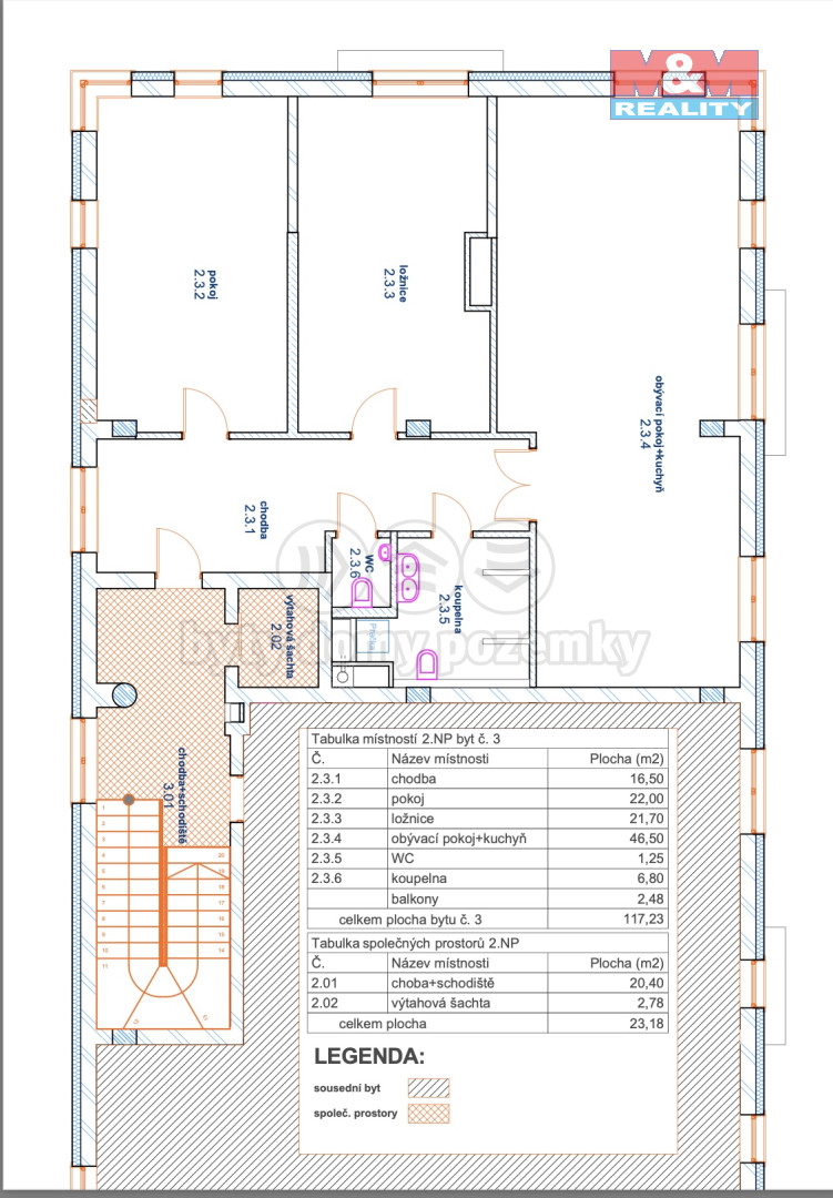
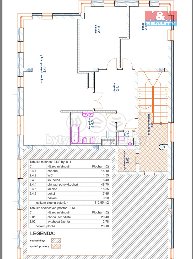
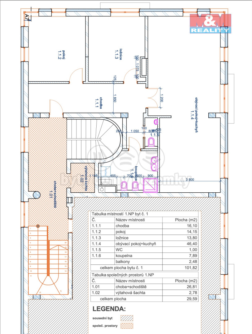
Nabízíme k prodeji bytový dům v prestižní lokalitě Karlových Varů - Rumunská ulice. Dům má osm velkorysých bytů o výměře 103-119 m2. Dva z nich jsou již pronajaty a generují stabilní výnos, ostatní jsou ve stavu shell & core a umožňují budoucímu majiteli úpravy přesně podle vlastního vkusu a záměru. Ideální pro investici, pronájem či kombinaci s vlastním bydlením. V domě je moderní výtah, reprezentativní mramorové schodiště a kamerový systém. Každý byt má podlahové vytápění a samostatný plynový kotel Wolf. Součástí nemovitosti je garážové stání pro šest vozidel a dvě venkovní parkovací místa. Objekt se nachází v klidné, přesto velmi dobře dostupné lokalitě nedaleko centra města. Díky svému technickému stavu a možnostem úprav představuje tato nemovitost mimořádnou příležitost pro ty, kdo hledají kvalitu, prostor a investiční potenciál. Pro více informací mě kontaktujte.
Prodej rodinného domu, 151 m2, Karlovy Vary, ul. Nerudova
Hledáte místo, kde začne nový příběh Vašeho života? Právě jste ho našli. Na klidném okraji Karlových Varů, ve vyhledávané lokalitě Stará Role, se…
Prodej rodinného domu, 100 m2, Karlovy Vary, ul. Svobodova
Nabízíme k prodeji rodinný dům v Karlových Varech, v ulici Svobodova, o užitné ploše 100 m2, který zaujme především kombinací moderně řešeného…