Makléř: Batěk Ondřej
Telefon: 800 100 ...
E-mail: info@mm ...
Zobrazit celý kontaktTelefon: 800 100 446
E-mail: info@mmreality.cz
Nemovitost nabízí
M&M reality holding a.s.
Krakovská 1675/2, 110 00 Praha 1
Zobrazit kontakt na RK800 100 446
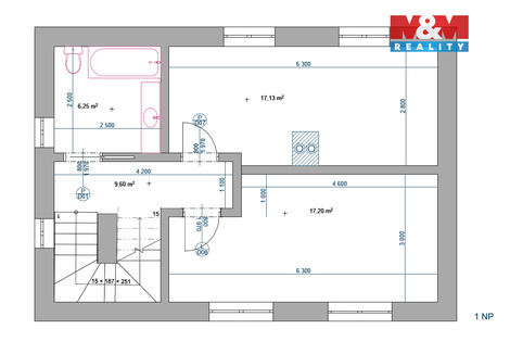
Rodinný dům s výhledem na hrad Loket a řeku Ohři Nabízíme rodinný dům v jedné z nejmalebnějších částí města Loket, přímo na břehu řeky Ohře s jedinečným výhledem na historické centrum a hrad Loket. Dům je podsklepený a nabízí dvě obytná patra, obytnou půdu a dostatek prostoru pro rodinné bydlení i rekreační využití. Součástí je také velkorysý pozemek, který poskytuje soukromí, prostor pro zahradu i možnost další výstavby. Na břehu řeky se navíc nachází rybářská chata, ideální místo pro relaxaci, posezení u vody nebo rybaření. Nemovitost je vhodná jak pro trvalé bydlení, tak jako investiční příležitost - například pro rekreační ubytování nebo apartmány v turisticky velmi atraktivní lokalitě. Loket je historické město s kompletní občanskou vybaveností, obklopené přírodou Slavkovského lesa a jen několik minut od Karlových Varů.
Moderní rodinný dům 5+kk v klidné lokalitě Lokte Nad Hájovnou
Hledáte prostorný a komfortní domov pro svou rodinu v klidném prostředí a přitom s dobrou dostupností města? Tento rodinný dům 5+kk v ulici Nad…
Dům, Loket
Nabízíme k prodeji rodinný dům v atraktivní a klidné lokalitě Loket, ulice Tovární. Tento objekt je ideální pro ty, kteří hledají moderní bydlení a…